Bilocale in vendita

Roma, Via Mario Romagnoli - Balduina
€ 280.000
2 locali 2 locali
50 Mq 50 Mq
1 bagno 1 bagno

Bilocale in vendita

Roma, Via Mario Romagnoli - Balduina

Descrizione annuncio

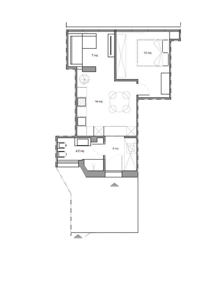
VIA MARIO ROMAGNOLI - BILOCALE, RISTRUTTURATO, TERRAZZATO

Proponiamo in anteprima un bilocale in fase di ristrutturazione, situato a pochi passi da Piazza della Balduina, in una zona altamente servita e ben collegata che garantisce la comodità di avere sotto casa negozi, supermercati e tutti i principali servizi del quartiere, rendendo l’abitazione ideale per chi desidera vivere in un contesto pratico e dinamico o per chi vuole mettere a reddito l'immobile.

L'appartamento verrà rifinito con materiali di pregio, scelti per garantire qualità, comfort e un’estetica moderna. Tutte le finiture e gli elementi previsti potranno essere visionati attraverso il capitolato disponibile direttamente presso la nostra agenzia, permettendo così di conoscere nel dettaglio ogni aspetto della ristrutturazione in corso.

Il fabbricato ha già beneficiato dei lavori di rifacimento della facciata esterna, un intervento che valorizza notevolmente l’estetica dello stabile e ne migliora la qualità complessiva.

L’immobile viene proposto in anteprima esclusiva ed è già possibile fissare appuntamenti per visionarlo.

Il prezzo indicato è da intendersi valido e garantito fino al completamento dei lavori di ristrutturazione; successivamente, lo stesso sarà soggetto a revisione con relativo aumento.

Per chi desidera davvero immergersi nel progetto e vedere ogni dettaglio come se fosse già casa propria, abbiamo a disposizione un visore VR. È un’esperienza riservata ai clienti più interessati, così potrete esplorare gli spazi in modo realistico e valutare ogni ambiente da vicino.

È ancora possibile personalizzare la disposizione interna e scegliere i materiali da utilizzare nella ristrutturazione: un’occasione unica per modellare l’appartamento secondo i propri gusti. Invitiamo i clienti a cogliere questa opportunità e ad affrettarsi prima dell’avvio definitivo dei lavori.

PER FISSARE UN APPUNTAMENTO CHIAMA LO 0635347797

Mostra tutto

Nelle vicinanze

Trasporto pubblico Trasporto pubblico
Cipro
Cipro
1,4 Km
Ottaviano
Ottaviano
1,8 Km
stazione di Roma Balduina
stazione di Roma Balduina
460 m
Appiano
Appiano
900 m
Risorgimento/S. Pietro
Risorgimento/S. Pietro
2,0 Km
Ricariche auto elettriche Ricariche auto elettriche
Rome Cavalieri, A Waldorf Astoria Resort
370 m
Axpo - Stazio
380 m
Roma Clodio | EnelX
1,0 Km
Parcheggio Mercato Trionfale - Musei Vaticani
1,5 Km
Roma Mazzini | EnelX
1,9 Km
Scuole Scuole
Istituto Comprensivo Diogene Romeo Chiodi
750 m
Giacomo Leopardi
940 m
Scuola Media Ludovico Ariosto
1,2 Km
John Felice Rome Center
1,2 Km
Giovan Battista Vico
1,2 Km
Farmacia Farmacia
Farmacia Rallo
90 m
Farmacia
260 m
Farmacia Balduina
350 m
Farmacia dott.ssa Renata Gerardini
420 m
Farmacia Pollicina
460 m
Ospedali Ospedali
Villa Stuart
1,1 Km
Complesso Integrato Columbus
1,3 Km
Ospedale Oftalmico
1,4 Km
Pronto Soccorso Ospedale Oftalmico
1,4 Km
Policlinico Universitario Agostino Gemelli
1,7 Km
Supermercati Supermercati
Carrefour Market
70 m
PAM
120 m
Simply Market
120 m
Elite
370 m
Carrefour express
750 m
Negozi Negozi
Sicilian Bakery
40 m
OVS
100 m
Negozi
260 m
-
290 m
Panificio Giammona
310 m
Bar Bar
Life'85
870 m
Beere mangiare e co.
1,2 Km
Bar
1,2 Km
Enofficina
1,3 Km
Lu Night Bistrò
1,3 Km
Ristoranti Ristoranti
La Natura
150 m
Foodoo
170 m
Ristorante Festoavieno
180 m
Altrogiro
230 m
Il Chiodo Fisso
290 m
Mostra tutto

Caratteristiche

Rif.:
61159082
Piano:
1 di 1 con ascensore (Piano basso)
Terrazzi:
1
Camere da letto:
1
Arredamento:
Assente
Condizionamento:
Autonomo
Mostra tutto
Prezzo Prezzo
€ 280.000
Rata mutuo Rata mutuo
€ 1.319 / mese
Proponi il tuo prezzoProponi il tuo prezzo

Classe Energetica

F
F
F
F
F
F
F
F
F
EP globale non rinnovabile:
177.00 kW h/m² anno
EP globale rinnovabile:
177.00 kW h/m² anno
EP invernale del fabbricato:
EP estiva del fabbricato:
Anno di costruzione:
1955
Riscaldamento:
Centralizzato
Tipo impianto:
A radiatori
Tipo alimentazione:
Altro

Ti interessa visionare l'immobile?

Fissa un appuntamento  Fissa un appuntamento

Richiedi informazioni

Clicca su Leggi per aprire l'informativa
* Questi campi sono obbligatori

Calcola il tuo mutuo

Semplice e senza impegno
Anticipo

( % )
Mutuo

( % )

pochi semplici passi

inserisci i tuoi dati
Questionario completato
Grazie per aver richiesto un appuntamento senza impegno con un nostro Consulente del Credito e Assicurativo.

Hai inserito correttamente tutti i dati necessari e a breve riceverai una e-mail con un link da convalidare per inviare i tuoi dati.
Affiliato
Balduina 2 Srl
P.zza della Balduina, 24 00136 Roma (RM)

Il nostro staff


  • Marco Di Saverio
    Collaboratore

  • Sharon Gigliotti
    Coordinatrice

  • Michel Orlando
    Responsabile

  • Bader Temnaoui
    Collaboratore
P.zza della Balduina, 24 00136 Roma (RM)
Zona: Balduina
Mostra su mappa
Orari: dal lunedì al venerdì 08.45-13.00 e 14.30-19:30 sabato 09.00- 13:00 sabato pomeriggio e domenica su appuntamento
Affiliato
Balduina 2 Srl
P.zza della Balduina, 24 00136 Roma (RM)

2026 Tecnocasa Franchising S.p.A. - P. IVA 08365160152 - Via Monte Bianco 60/A 20089 Rozzano (MI). Ogni agenzia ha un proprio titolare ed è autonoma. Privacy policy | Policy utilizzo | Cookie policy